Download this free 2d cad block of a basement wall protection detail including material detailsthis autocad drawing can be used in your construction detail design cad drawings. Parking specifications 9993 kb.

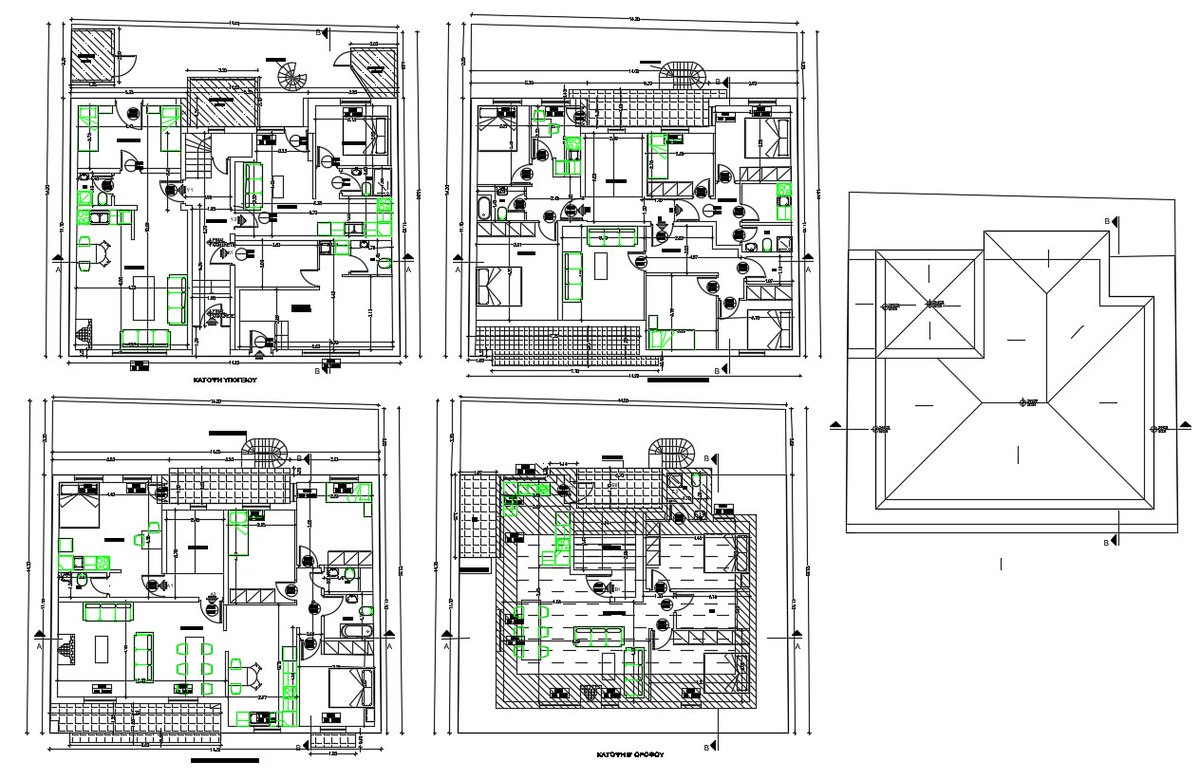
Basement Plan And Section Detail Dwg File Cadbull
It covers adding wall hatch additional dimensions additional layers modifying the titleblock and attribute definitions page setup attsync modifying plot data modifying attribute values adding author information adding a view title adjusting lineweights.
Basement plan dwg. Describes how to put finishing touches on the basement floor plan depicted in daniel stines residential design using autocad 2017. Cad forum blockebi 3 office free cadbim block library dwgrfaipt 3d2d by cad studio. Drawing labels details and other text information extracted from the cad file translated from spanish.
Autocad 2000dwg format our cad drawings are purged to keep the files clean of any unwanted layers. Drawing shows detailed layout plan of each block with furniture layout planning of all floors basement plan with driveway parking and services all side building elevations site plan and door window opening schedule. Autocad drawing of multi storey commercial office complex has got 3block ie block a and b has got 5 floors and block c has got 11 floors with a modern theme building profile.
This model can be used in your parking planning projects. Parking library of dwg models cad files free download. Autocad drawing of basement car parking ramp detail.
Download cad block in dwg. Ft shopping mall plan elevation section drawing autocad architecture dwg file download. Basement plans for an department building.
Download this free 2d plan of basement parking. Autocad drawing of a commercial complex designed in 10000 sq. Drawing shows complete working drawing of 3 level ramp with working plan.
Npt land line beam projection garbage containers elevator distribution plant basement railings metal. Shopping mall cum residential apartments dwg layout plan. Basement plans for an department building.
Basement plans parking dwg plan for autocad.
![]()
Underground Car Park In Autocad Cad Download 4 41 Mb Bibliocad

Hotel Basement Plan Layout Autocad Drawing

Gallery Of Waterfall House Architects49 House Design Limited 31

Basement Floor Plan Of Mixed Use Building Dwg File Basement
Http Www Worldclasscad Com Architectural Pdf Appendix 20f 20drawing 20a 20foundation 20or 20basement 20plan Pdf

Basement Parking Layout Design
![]()
Basement Designed By Daic Basement Design Low Ceiling 80 Inches

Basement Plan Dwg File Cadbull

Basement Floor Car Parking Lot Of Business Center Dwg File Cadbull

Plan Of Eye Hospital Design With Detail Dimension In Dwg File
![]()
Basement Plans Parking In Autocad Download Cad Free 99 93 Kb
Basement Parking Dwg Plan Cad Blocks Free

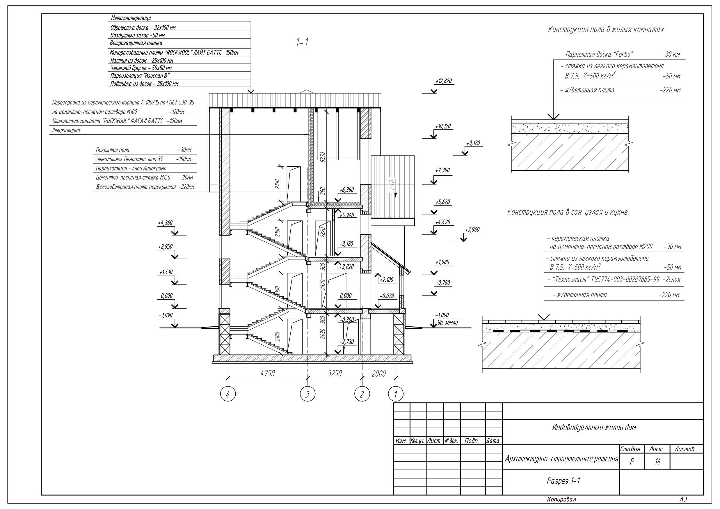
Basement Section Becowallform Insulated Concrete Formwork

Buy Two Storey House With Basement Residential Loft Dwg And

Autocad House Plans Dwg Lovely Cad Drawing House Plans 104717
Copying From A Foreign Dwg To A True Dwg Autodesk Community
Car Parking Design Types Examples And A 3d Architectural Bim

Shopping Mall With Multilevel Car Parking Cad Files Dwg Files

Commercial Complex Shopping Mall Cum Residential Apartments Dwg

Site Plan Of Multi Storey Cad Design Free Cad Blocks Drawings

Villa Basement Cad Layout Decors 3d Models Dwg Free Download

Detallesconstructivos Net Construction Details Cad Blocks

Thank you for post Useful Piece of Information. Keep Sharing More like this stuff.
ReplyDelete