One design option is a plan with a so called day lit basement that is a lower level thats dug into the hill. Building a house with a basement is often a recommended even necessary step in the process of constructing a house.

Basement Plan Black White House Fresh Palace
Whether youre looking for craftsman house plans with walkout basement contemporary house plans with walkout basement sprawling ranch house plans with walkout basement yes a ranch plan can feature a basement or something else entirely youre sure to find a design that pleases you in the collection below.
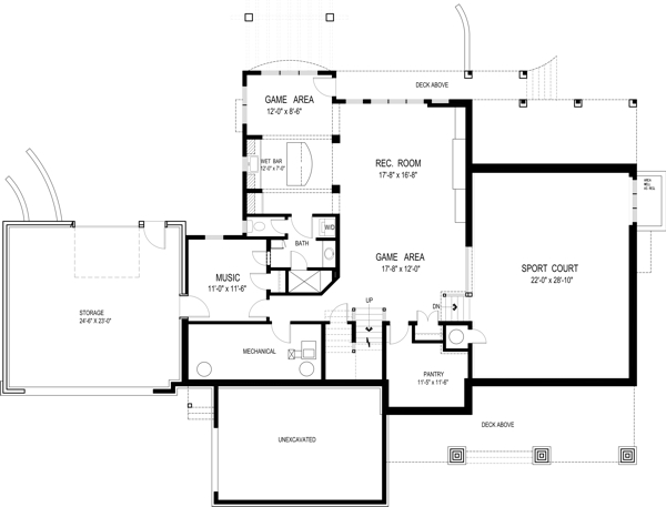
Basement plan for house. This spectacular basement house plan demands the perfect setting such as a rustic mountain property or scenic lake lot on which to build this home. Walkout basement house plans maximize living space and create cool indooroutdoor flow on the homes lower level. Thats because a sloping lot can hold a walkout basement with room for sleeping spaces fun recreational rooms and more.
Even if you are not planning to build on a sloping lot chances are you will still be a able to add a basement if you choose. House plans with basements are desirable when you need extra storage or when your dream home includes a man cave or getaway space and they are often designed with sloping sites in mind. If youre on a sloping lot a house plan with a walkout basement is a perfect addition for your space.
Depending upon the region of the country in which you plan to build your new house searching through house plans with basements may result in finding your dream house. Yes it can be tricky to build on but if you choose a house plan with walkout basement a hillside lot can become an amenity. However the use of basements depends largely on factors specific to a particular geographical area such as climate soil seismic activity building technology and real estate economics.
If youre dealing with a sloping lot dont panic. A basement can be used in almost exactly the same manner as an additional above ground floor of a house or other building. Donald a gardner architects has a wide selection of house plans that will accommodate a basement option.
Amazing architectural styling and design elements fashion this home and push it toward the top of our most popular house plans. This channel is made for free house plans and designs ideas for you. House plans can have a basement floor plan option added.
Walkout basement house plans. Basement types benefits. Building a home with a finished basement leads to extra long term value for your property and is something you definitely wont regret.
Dealing with a lot that slopes can make it tricky to build but with the right house plan design your unique lot can become a big asset.
Small House Plans In Philippines Isabellahouse Co
3 Bedroom Basement Floor Plans

Winston 3 Car 5241 3 Bedrooms And 2 Baths The House Designers

Building Floor Plan House Basement Project Storey Attic

Top 15 House Plans Plus Their Costs And Pros Cons Of Each Design

Country House Plan With Unfinished Basement 28917jj

Olmstead 2288 4 Bedrooms And 4 5 Baths The House Designers

House Plan 4 Bedrooms 2 5 Bathrooms 7900 Drummond House Plans
![]()
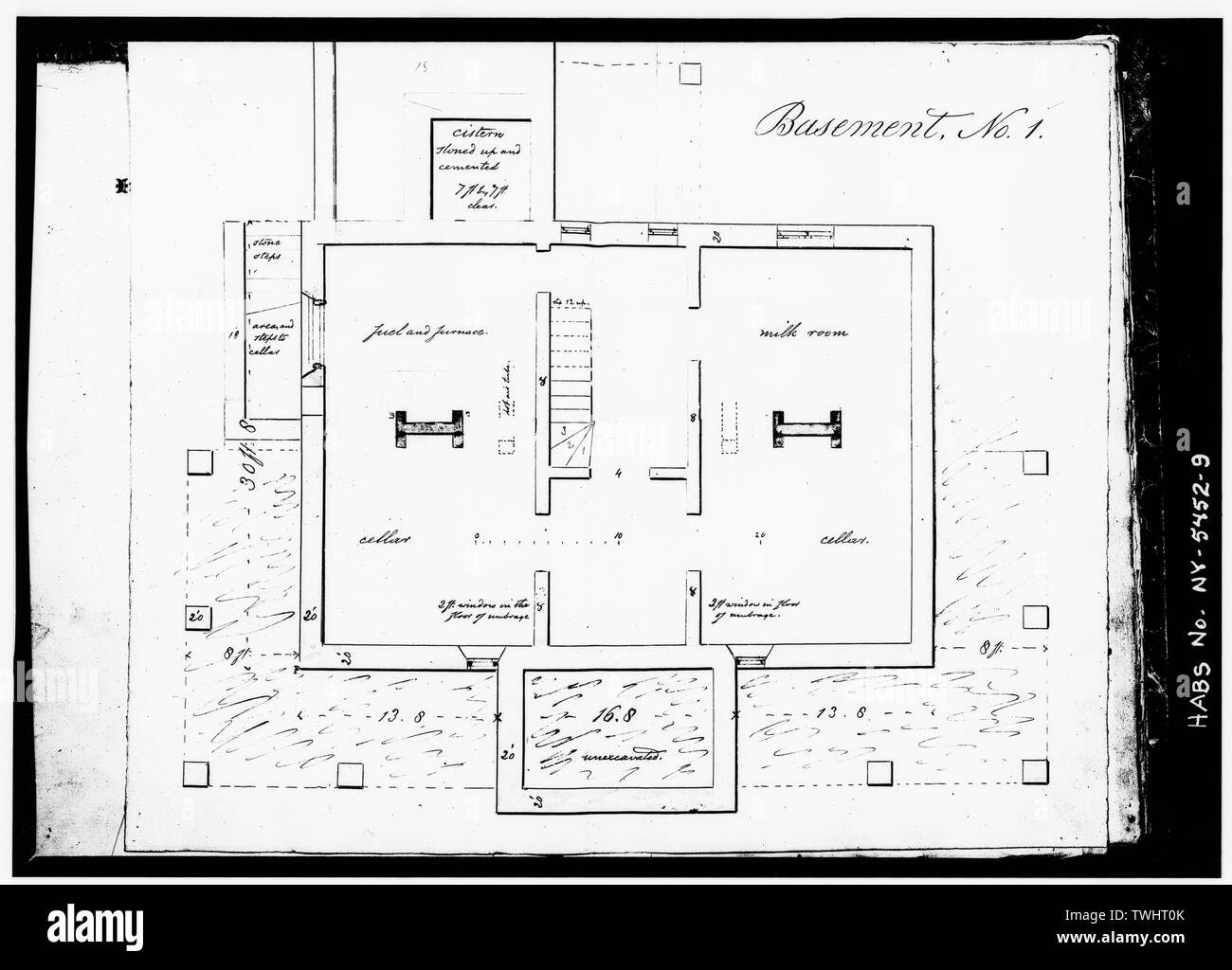
File Basement Floor And Structural Plan Amoureaux House In Ste
Small House Floor Plans With Basement

Gallery Of Glebe House Studio Residence U I Building Studio 28

Ppt Foundation Plans Powerpoint Presentation Free Download Id
House Plan House Floor Plan With Basement

House Plans With A Basement 6 Bedroom House Design Plandeluxe
Tiny House With Basement Plans Escortsea

Sheet No 1 Basement Plan Reuel Smith House West Lake Road

1500 Sq Ft Ranch House Plans With Basement Deneschuk Homes 1400

House Plan With Basement Parking See Description Youtube
![]()
File Basement Plan Obici House 1400 Sleepy Hole Road Suffolk

Gallery Of Kampono House Raw Architecture 29
One Story House Plans With Basement Wpcoupon Site

Design A Basement Floor Plan With Fine Home Plans Larahenley
House Design Drawings Open Floor Plan 4 Bedroom 2 Story House

No comments:
Post a Comment